



Karavan Su Isıtıcıları: Gazlı ve Elektrikli Modeller
Karavanla seyahat etmek, özgürlük ve doğa ile iç içe bir deneyim sunar. Ancak, bu yaşam tarzının konforlu olabilmesi için bazı temel ihtiyaçların karşılanması gerekir. Sıcak su, bu ihtiyaçların başında gelir. Karavan su ısıtıcıları, sıcak su ihtiyacını karşılayan önemli bir ekipmandır ve genellikle gazlı ve elektrikli modeller olarak ikiye ayrılır.
Whale Gazlı Karavan Su Isıtıcısı
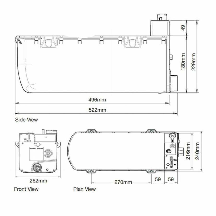
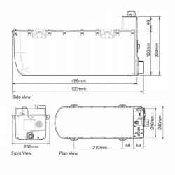
Whale 8 Litre Karavan Su Isıtıcısı, karavanınıza ek alan kazandıran, araç altına monte edilebilen ve karavan yan duvarlarında delik açmaya gerek bırakmayan ideal bir çözümdür. Bu su ısıtıcısı, musluğunuza gelen suyu hızla ısıtmak için sadece gaz çalışabilme özelliğine sahiptir.
Kompakt ve Hafif Tasarım
Whale su ısıtıcısı, 8 litre su ısıtma kapasitesi ile karavanınıza büyük bir avantaj sağlar. Kompakt ve hafif yapısı sayesinde montaj kolaylığı sunar ve karavan içindeki alanın daha verimli kullanılmasına olanak tanır. Araç altına monte edilebilmesi, içeride daha fazla yaşam alanı yaratır.
Esnek Montaj Seçenekleri
Ürünün tasarımı, karavan şasesine farklı konumlarda monte edilebilme esnekliği sunar. Bu sayede, montaj yapılacak alan konusunda geniş bir yelpaze sunarak, en uygun yeri seçmenize imkan tanır.
Whale Duo Kontrol Paneli Uyumluluğu
Whale Duo kontrol paneli ile tam uyumlu çalışacak şekilde tasarlanmıştır. Bu sayede, suyu ısıtma ve yeniden ısıtma fonksiyonlarını kolayca yönetebilirsiniz. Ürünün hızlı su ısıtma performansı ile tek bir duş için yaklaşık 11 dakika, çift duş için ise sadece 20 dakika beklemeniz yeterli olur.
Yıl Boyunca Kullanım ve Üstün İzolasyon
Kullanıcı tarafından etkinleştirilebilen donma modu sayesinde, Whale su ısıtıcısı dört mevsim kullanıma uygundur. Gelişmiş EPS ısı izolasyonu, suyun daha uzun süre sıcak kalmasını sağlayarak, enerji tasarrufu yapmanıza yardımcı olur.
Kullanım Alanı: Araç altı ve içi